Продолжить в этом городе?
Основные характеристики
Описание
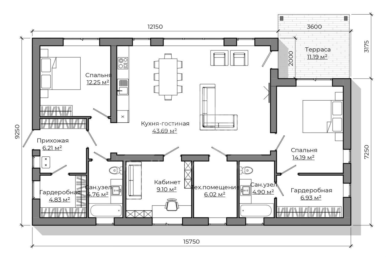
Номер объекта - 1725 Предлагаем к продаже авторский проект одноэтажного дома С-23 147 м². (Стоимость без участка) Отличный вариант для тех, кто планирует комфортное загородное проживание в спокойном и живописном месте. Готовы подробно ответить на все вопросы и предоставить дополнительную информацию. Звоните — будем рады помочь! В "Базовую" комплектацию дома входит полный закрытый теплый контур: • Подготовительные работы - Проект дома; Документы для БТИ; Оценка стройплощадки • Фундамент (зависит от участка) • Несущие стены газоблок / керамоблок / кирпич • Монолитный пояс • Перекрытия - Ширина плит перекрытия: 1-1,5м; Длина до 9 м.; Утепление торцов плит; Заделка швов • Утепленная кровля из металлочерепицы • Окна двухкамерные с тройным стеклопакетом • Металлическая входная дверь с зимним утеплителем Если вас заинтересовал дом — обращайтесь за подробностями. Всегда рады помочь. Помощь в получении кэшбека при покупке недвижимости, ипотеки, реализации материнского капитала и сертификатов. Гарантируем безопасность сделки.
Вам может быть интересно








